In attraktiver, stadtnaher Lage von Rautheim, ruhig gelegen und zugleich hervorragend angebunden, entsteht ein hochwertiges Wohnensemble mit mehreren modernen Häusern und großzügig geschnittenen Wohnungen. Die Verbindung aus dörflichem Charme, urbaner Nähe und moderner Architektur macht dieses Projekt besonders begehrenswert.
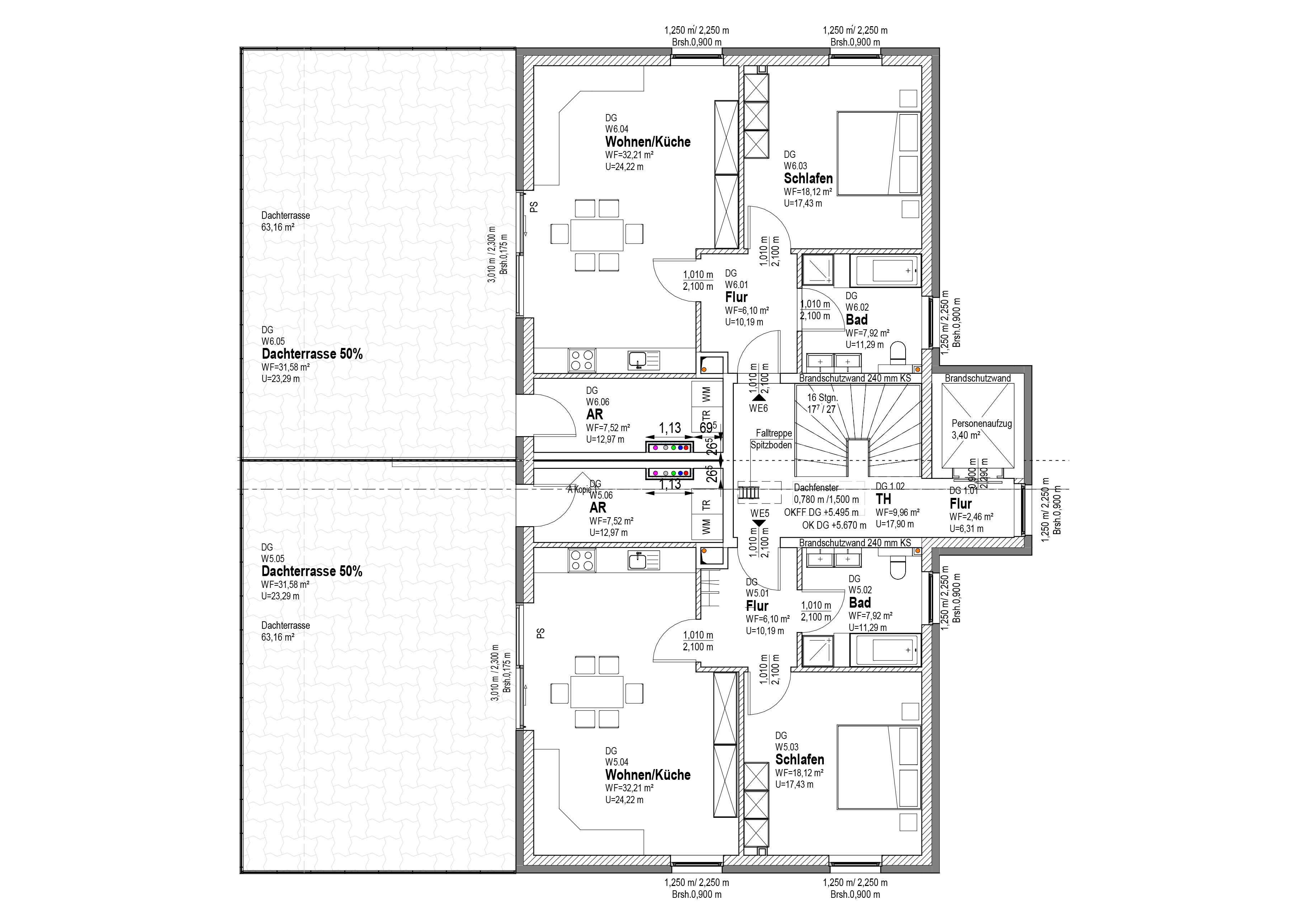
Anzahl der Wohnungen: 24 Neubauwohnungen Jeweils 6 Wohnungen in 4 Häusern
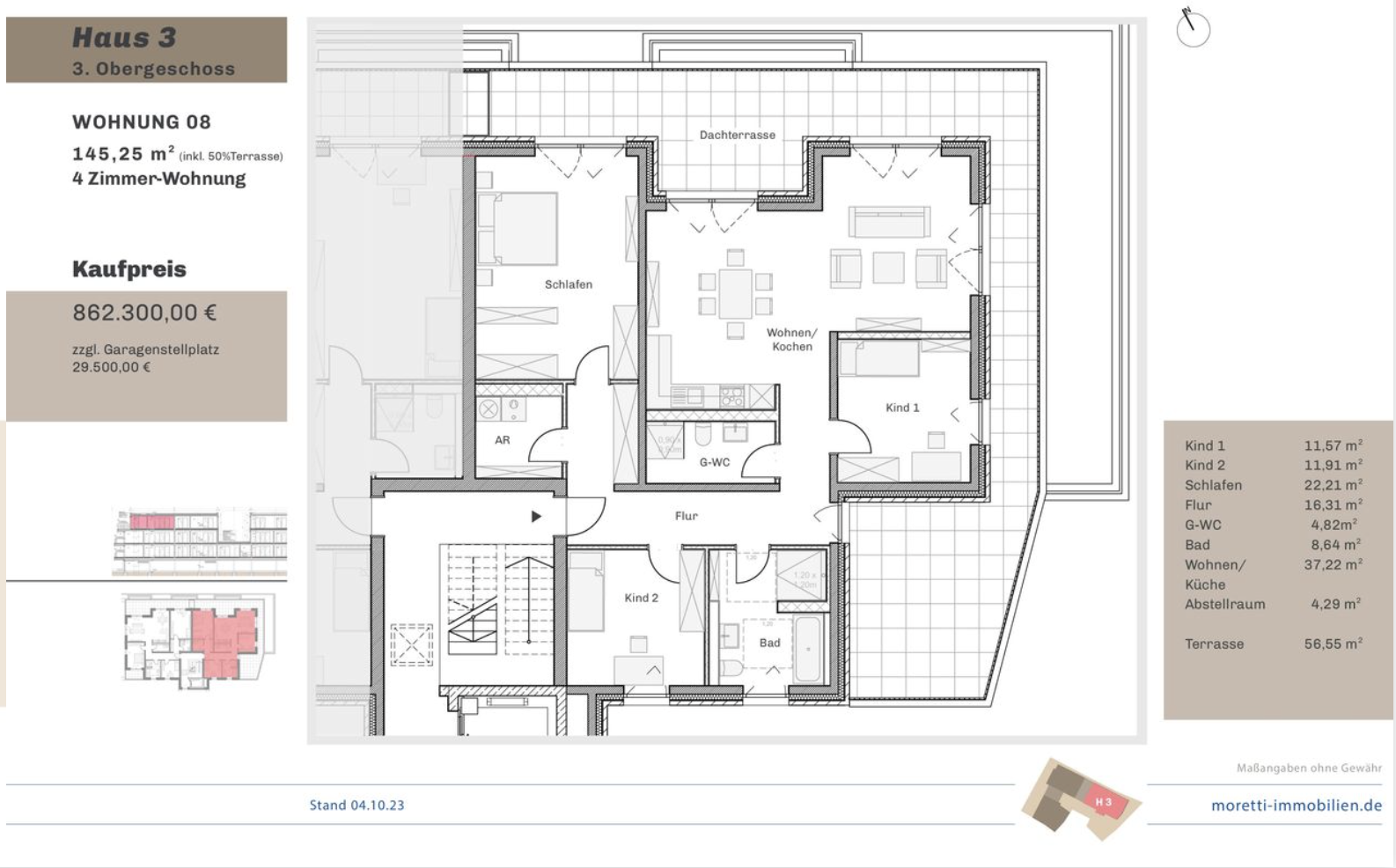
Anzahl der Räume: 2- und 4-Zimmer-Wohnungen
Wohnflächen: 104 bis 125 m²
Garantierte Fertigstellung: August 2026 1. Bauabschnitt
Die Wohnungen werden nach dem energieeffizienten KfW-55-Standard errichtet und erfüllen hohe Anforderungen an Nachhaltigkeit und Energieeffizienz.
Nachhaltige Energie
Das Gebäude ist mit zukunftsfähiger Gebäudeausrüstung in Form von nachhaltigen Energiequellen wie Erdwärme und Photovoltaik ausgestattet.
Barrierefreies Wohnen mit Personenaufzug
Die Wohnungen sind barrierefrei gestaltet und verfügen über einen Personenaufzug, der einen komfortablen Zugang zu allen Etagen ermöglicht.
Bodentiefe Fenster mit elektrischen Rolladen
Bodentiefe Fenster mit elektrischen Rollläden sorgen für helle Räume, hohen Wohnkomfort und flexible Beschattung.
Glasfaser-Internet mit LAN-Anschluss
Glasfaser-Internet mit LAN-Anschluss in jedem Raum ermöglicht eine schnelle und stabile digitale Anbindung.
Hochwertiges Badezimmer & Gäste WC
Die tageslichthellen Badezimmer sind hochwertig ausgestattet mit einer bodengleichen begehbaren Dusche, freistehender Badewanne, Doppelwaschtisch und WC. Darüber hinaus bietet das Gäste-WC zusätzlichen Komfort im Alltag.
Offenes Wohnkonzept
Die offenen Wohnkonzepte bilden mit den Kombinationen von Wohn-, Koch- und Essbereich moderne Lebensmittelpunkte.
Garten, Balkon oder Großzügige Terrasse
Jede Wohnung verfügt über einen privaten Außenbereich in Form von Garten, Balkon oder großzügiger Terrasse.
Stellplatz & Aufbewahrungsmöglichkeiten
Für das sichere und zugleich bequeme Abstellen Ihres Fahrzeugs, entstehen auf dem Grundstück Stellplätze, die mit einer Wallbox ausgestattet werden können. Zudem verfügt jede Wohnung über einen eigenen Abstellraum. Ihre Fahrräder können Sie bequem vor der Eingangstür oder im abschließbaren Gemeinschaftsraum abstellen.
Warum ist Braunschweig die perfekte Gegend für Sie?
Eine lebendige Stadt, die Geschichte, moderne Kultur und grüne Oasen harmonisch miteinander verbindet.
Stadtleben in angenehmer Größe
Braunschweig bietet mit rund 250.000 Einwohnern urbanes Leben ohne Großstadthektik und überzeugt durch kurze Wege sowie eine gute Erreichbarkeit vieler Ziele.
Starke Bildungs- und Forschungslandschaft
Die Technische Universität Braunschweig, weitere Hochschulen und Forschungsinstitute prägen ein innovatives, junges und internationales Umfeld.
Viel Grün- und Wasserflächen
Die Oker, Parks und nahegelegene Naturräume ermöglichen Erholung, Spaziergänge, Sport und Freizeit direkt in der Stadt.
Historische Identität und Kultur
Der Dom St. Blasii, die Burg Dankwarderode und das Magniviertel prägen das Stadtbild, ergänzt durch Theater, Museen, Konzerte und ein vielfältiges Kulturangebot.
Eine lebendige Stadt, die Geschichte, moderne Kultur und grüne Oasen harmonisch miteinander verbindet.
Stadtleben in angenehmer Größe
Braunschweig bietet mit rund 250.000 Einwohnern urbanes Leben ohne Großstadthektik und überzeugt durch kurze Wege sowie eine gute Erreichbarkeit vieler Ziele.
Starke Bildungs- und Forschungslandschaft
Die Technische Universität Braunschweig, weitere Hochschulen und Forschungsinstitute prägen ein innovatives, junges und internationales Umfeld.
Viel Grün- und Wasserflächen
Die Oker, Parks und nahegelegene Naturräume ermöglichen Erholung, Spaziergänge, Sport und Freizeit direkt in der Stadt.
Historische Identität und Kultur
Der Dom St. Blasii, die Burg Dankwarderode und das Magniviertel prägen das Stadtbild, ergänzt durch Theater, Museen, Konzerte und ein vielfältiges Kulturangebot.
Warum der Braunschweiger Raum perfekt für Sie ist?
Eine lebendige Stadt, die Geschichte, moderne Kultur und grüne Oasen harmonisch miteinander verbindet.
Stadtleben in angenehmer Größe
Braunschweig bietet mit rund 250.000 Einwohnern urbanes Leben ohne Großstadthektik und überzeugt durch kurze Wege sowie eine gute Erreichbarkeit vieler Ziele.
Starke Bildungs- und Forschungslandschaft
Die Technische Universität Braunschweig, weitere Hochschulen und Forschungsinstitute prägen ein innovatives, junges und internationales Umfeld.
Viel Grün- und Wasserflächen
Die Oker, Parks und nahegelegene Naturräume ermöglichen Erholung, Spaziergänge, Sport und Freizeit direkt in der Stadt.
Historische Identität und Kultur
Der Dom St. Blasii, die Burg Dankwarderode und das Magniviertel prägen das Stadtbild, ergänzt durch Theater, Museen, Konzerte und ein vielfältiges Kulturangebot.
Rautheim – stadtnah wohnen mit hoher Lebensqualität
Rautheim überzeugt durch seine stadtnahen Lage nur rund drei Kilometer von der Braunschweiger Innenstadt entfernt. Kurze Wege, eine sehr gute Infrastruktur mit fußläufig erreichbarem Supermarkt und Restaurants, direkter ÖPNV-Anbindung sowie Spielplatz und Kita in unmittelbarer Nähe machen den Standort besonders attraktiv. Der nahe Autobahnanschluss rundet die ideale Kombination aus Komfort, Mobilität und Wohnqualität ab.
Drei Supermärkte und Bäckereien befinden sich direkt im Ort, weitere Einkaufsmöglichkeiten und Restaurants befinden sich in der nahegelegenen Umgebung.
Öffentlicher Nahverkehr
Der öffentliche Nahverkehr ist nur 50 Meter entfernt. Die Buslinien 431 und 411 bieten eine direkte Anbindung in die Stadt. Eine Ausweitung der Straßenbahn ist für 2028 geplant.
Spielplatz und Kita
Spielplatz und Kita befinden sich in unmittelbarer Nähe der Wohnungen.
Direkter Anschluss zur Autobahn
Direkter Anschluss an die Autobahnen A2 und A39.
Supermarkt, Bäcker und Restaurants
Drei Supermärkte und Bäckereien befinden sich direkt im Ort, weitere Einkaufsmöglichkeiten und Restaurants befinden sich in der nahegelegenen Umgebung.
Öffentlicher Nahverkehr
Der öffentliche Nahverkehr ist nur 50 Meter entfernt. Die Buslinien 431 und 411 bieten eine direkte Anbindung in die Stadt. Eine Ausweitung der Straßenbahn ist für 2028 geplant.
Spielplatz und Kita
Spielplatz und Kita befinden sich in unmittelbarer Nähe der Wohnungen.